Ruimte, Comfort en Veiligheid – Type C-K op de 5e Verdieping van Haagstate

Huurprijs:

€ 1.951,20 per maand (excl servicekosten € 110,-)

Oppervlakte:

126 m2

Slaapkamers:

3


Wilt u royaal, comfortabel en toekomstbestendig wonen in een veilige omgeving? Dan is dit type C-K appartement op de 5e verdieping van Haagstate precies wat u zoekt!

Ruimtelijk en Licht Wonen

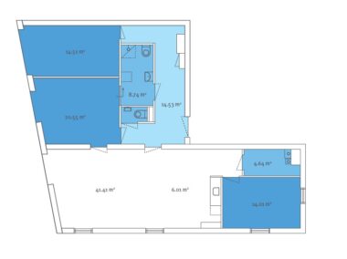
Met een woonoppervlakte van maar liefst 47,5 m² in de woonkamer alleen al biedt dit appartement volop leefruimte. De royale woonkamer met open keuken vormt het hart van de woning – een fijne plek om te ontspannen, te koken en te genieten van het dagelijks gemak. De complete keuken is voorzien van alle benodigde apparatuur (met uitzondering van een vaatwasmachine).

Daarnaast beschikt het appartement over drie ruime slaapkamers, ideaal voor wie extra ruimte wenst voor logees, hobby’s of een werkkamer.

De moderne badkamer is volledig gelijkvloers en voorzien van een inloopdouche, wastafel en toilet. In de hal bevindt zich bovendien een tweede toilet voor extra comfort.

Klaar voor de Toekomst

Dit appartement is ontworpen met oog voor comfort en toegankelijkheid, nu én later:
✔ Volledig drempelvrij
Extra brede deuren
Alarmoproepinstallatie aanwezig
Geschikt voor het ontvangen van zorg aan huis

Zelfstandig én Zorgeloos Wonen

Dankzij een eigen combiketel en aparte elektra- en watervoorziening woont u hier volledig zelfstandig, met de zekerheid van moderne voorzieningen binnen handbereik. Het gehele appartement is afgewerkt met een nette laminaatvloer, wat zorgt voor een moderne uitstraling en eenheid in de vele vierkante meters woonruimte.

Zoekt u een ruim, veilig en comfortabel appartement dat klaar is voor de toekomst?
Neem dan snel contact op voor meer informatie of een bezichtiging!

Plattegrond van dit appartement

Bel me terug

Laat uw gegevens achter en wij bellen u binnen 1 werkdag terug.

    * Verplicht in te vullen